
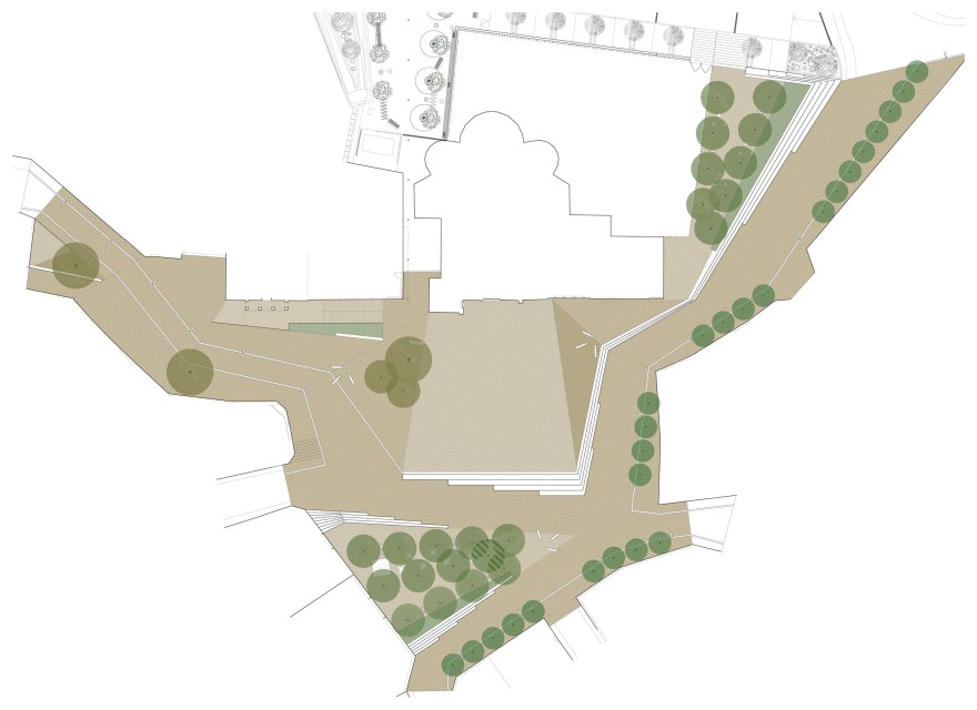
PLAZA MAYOR
All rights reserved SCOB.ES
The project’s area was traffic intersection of six streets in front of the church and the city hall. The target was to create a proper square giving priority to the pedestrian circulation and assigning to the church and to the city hall a proper public space. This was obtain creating a continuous surface composed of triangles and brakes from a staircase that change profile becoming a simple stair, a seat, a wall.The project include also the insertion of new trees as elements of a new space layout.



JARDIN MINERVA
All rights reserved SCOB.ES
THE PROJECT’S IDEA WAS TO CREATE A CONTINUOUS ELEMENT THAT ENGAGE ALL THE GARDEN. THIS IDEAS BECAME CONCRETE WITH A WOOD SURFACE THAT GOES FROM THE ENTRANCE UNTIL THE SWIMMING POOL ADAPTING ITSELF TO THE LAND’S MORPHOLOGY AND ASSUMING DIFFERENT FORMS IN RELATION TO THE CLIENT’S REQUESTS. NEAR THE ENTRANCE IT WAS A ZEN GARDEN WITH A BENCH TO OBSERVE IT. FOLLOWING THE LANDSCAPE IT WAS FIRST A LITTLE VEGETABLE GARDEN ALONG THE STAIRS, THEN AN OUTDOOR KITCHEN AND FINALLY A COMFORTABLE SEAT NEAR THE SWIMMING POOL. THE PROJECT HAS BEEN BUILT OF ARTIFICIAL WOOD.

